318 BELLEVUE
3
2
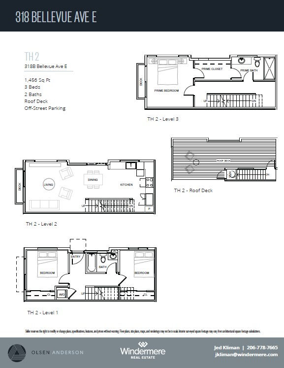
1,306-1,456
318 Bellevue Ave E, Seattle, WA 98102, USA
Stunning. Urban. Modern. Discover 318 Bellevue Ave E: a boutique collection of 6 new Olsen Anderson homes in prime Capitol Hill location. Step inside to soaring ceilings, big windows, open floorplan, wide plank floors, designer finishes. Enjoy views of city, Space Needle, and Olympics. TH1 is a sun-drenched west-facing home offering fenced patio, AC, generous rooms, dedicated EV-ready parking. Prepare meals in a chef's kitchen. Retreat to a dreamy primary suite with walk-in closet + spa-inspired bath. Entertain friends on huge roof deck w/ knock-out views. Dream location: just blocks off Broadway, walkable to SLU, downtown, light rail, everything on Capitol Hill.


This new home community offers a variety of thoughtfully designed floor plans to fit your unique lifestyle and needs, each with unique features and two different finish schemes to choose from. Browse floor plans, compare layouts, and find the perfect home for you.




We are committed to building homes that not only provide comfort and style, but also prioritize sustainability and the health of our planet. We believe that every home should be designed and built with environmentally-friendly features and practices, and we are proud to include these features in all of our homes. From extra insulation to energy-efficient appliances, our homes are built with the latest technology and materials to ensure a smaller carbon footprint and a healthier living environment. We also strive to minimize waste by recycling construction and demolition materials. By choosing Olsen Anderson, you can have a positive impact on the planet and enjoy a more comfortable, healthy, and cost-effective lifestyle.




INTERIORS
• Designer finishes
• High-end kitchen
• Induction cooking
• Quartz counters
• Central AC
• Walk-in closets
• Spa-inspired primary suite
• Huge laundry room




EXTERIOR
• HardiePanel siding
• Pre-wired for electric car charging
• Ductless mini-split heating & AC
• Low voltage networking package
• Private rooftop deck
• Vinyl windows
• Surface parking
• 1-2 Car Garage
NEIGHBORHOOD
Experience the perfect blend of urban living and suburban tranquility in the charming Sunset Hill neighborhood of Ballard, where stunning views of the Olympic Mountains and Puget Sound meet quaint streets lined with locally-owned businesses and eateries.


























